
This studio investigates the future of post-rural towns facing depopulation, aging building stock, and the loss of local industries. Grounded in the specific context of
Ervy-le-Châtel, the studio explores how architecture can respond to these challenges by working directly with local resources, existing buildings, and regional production systems, rather than importing generic solutions. Within this broader agenda, my work focuses on timber construction as both a material and a cultural framework. Surrounded by forests and supported by long-standing sawmills, Érvy possesses a deep yet fragile timber tradition embedded in its half-timber buildings and craft knowledge. I approach timber not as a nostalgic reference, but as a living construction system that can be reinterpreted to meet contemporary spatial, structural, and environmental demands. Through two projects at different scales, a small urban insertion and a regional production-based institute, I explore how timber architecture can support new forms of living, making, and learning, while remaining rooted in local context and material logic.
Institution: Harvard Graduate School of Design
Course: Post-Rural Futures: Designing What Comes After the Village
Project: Corner Design
Instructor: Yichun Liu
Year: 2025
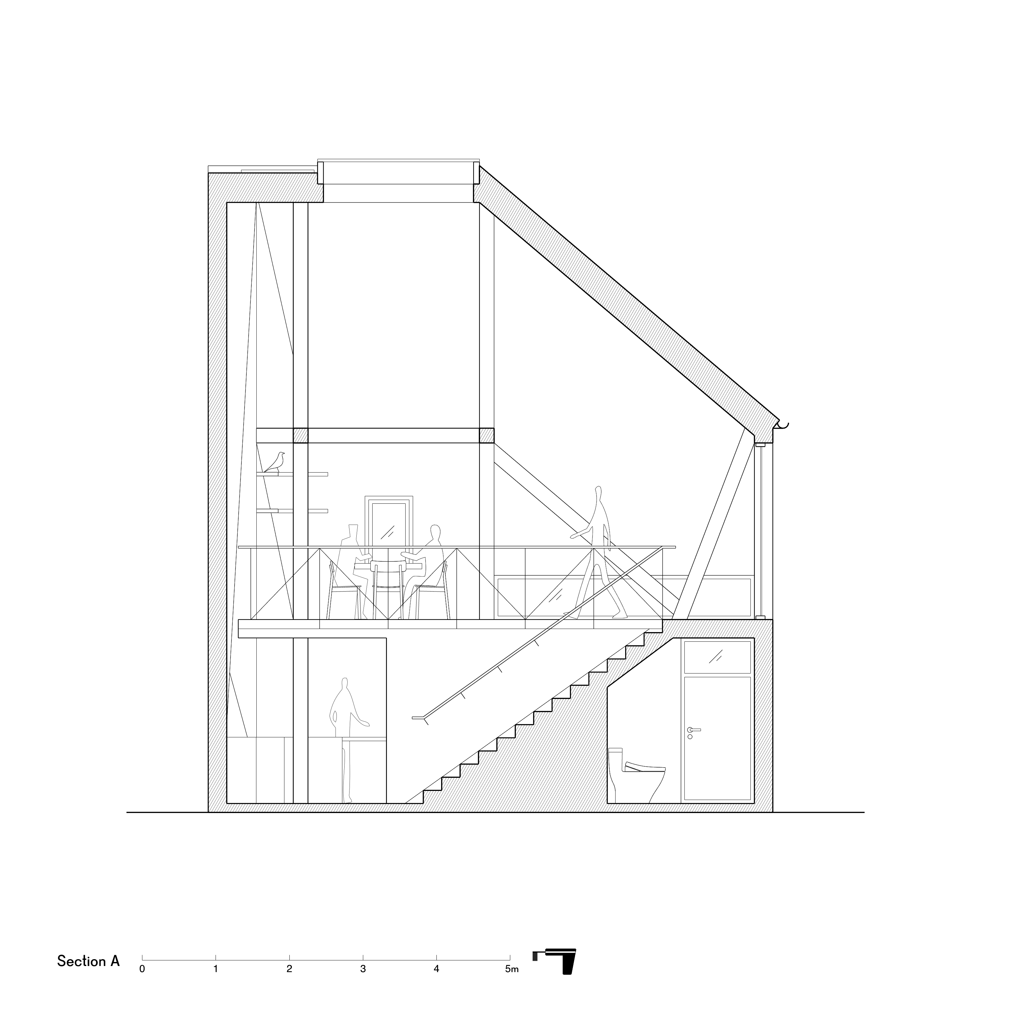
Project I - Corner in the Corner
The first project is a small corner café located at a key intersection in the town center. Rather than focusing on the program alone, the project introduces a simplified timber structural system that sits between traditional half-timber framing and modern construction. The building folds inward to create a new corner condition while respecting the surrounding urban fabric. Timber structure is subtly revealed behind a plastered façade, demonstrating how new construction can quietly dialogue with historic context.
Project II - Across the Grain
The second project expands this exploration into a timber construction incubator located on an abandoned railway site near a local sawmill. The proposal combines production, learning, and living into a continuous spatial gradient—from public workshops and fabrication spaces to communal and private housing. Inspired by the woodworking concept of “across the grain,” the project uses a modular, repeatable timber system that adapts across scales, from large-span workshops to individual bedrooms. The institute supports knowledge exchange between traditional craftsmanship and contemporary techniques while reconnecting architecture to the full cycle of timber production.